|
|
|
Master Plan
Phase 1
Phase 2

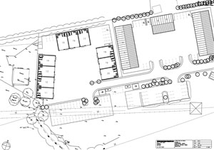
Phase 2 development site, showing location
to main
Stratford-Banbury road A422. |

Phase 2 Site Plan Layout - showing the 10 proposed small business units with their associated parking and landscaped areas. |

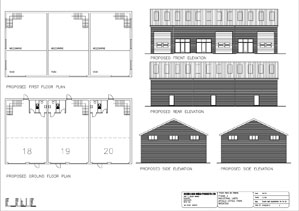
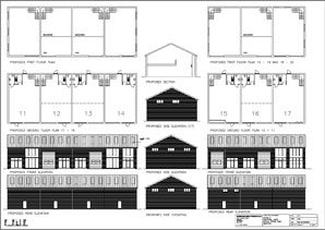
Proposed buildings design sections |

Approved landscaping scheme
|
Unit Specifications
Each small business unit will be built to the highest specifications and, depending on individual purchaser's requirements, will feature:
- Attractive external appearance - suitable for rural location
- Extensive car parking areas– 4 reserved places/unit
- Additional Visitor’s Parking Area
- Attractive & extensive landscaping plan
- External Lighting
- Security Gate with card reader
- Floor loading in excess of 35 kN/sq.m.
- Power: 70 KVA with 3-phase. Can be upgraded to 140kVA as an optional extra.
- Sizes to range from 1600 sq.ft. (148 sq.m.) Units can be easily joined together to provide additional space.
- Unit size: 26' x 42' (8m x 13m)
- Open Plan spec but easily divided by stud partitioning.
- Full disabled access.
- High quality double/triple glazing
- Electrically-operated Roller shutter door.
- Individual Disabled Toilet for each unit - highest quality fittings.
- Kitchenette Unit with sink, cupboard units and fridge.
- Heating & electric panel heaters to kitchenette & toilet areas.
- High security locks
- Smoke Alarm
- Broadband access
|
|